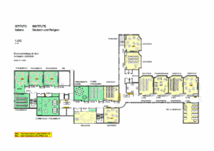
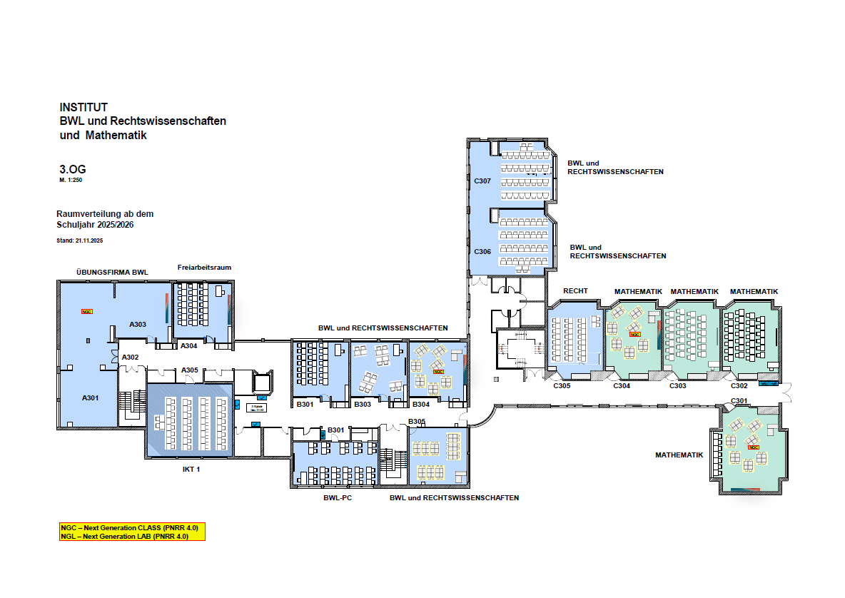
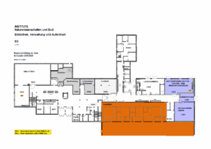
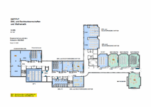
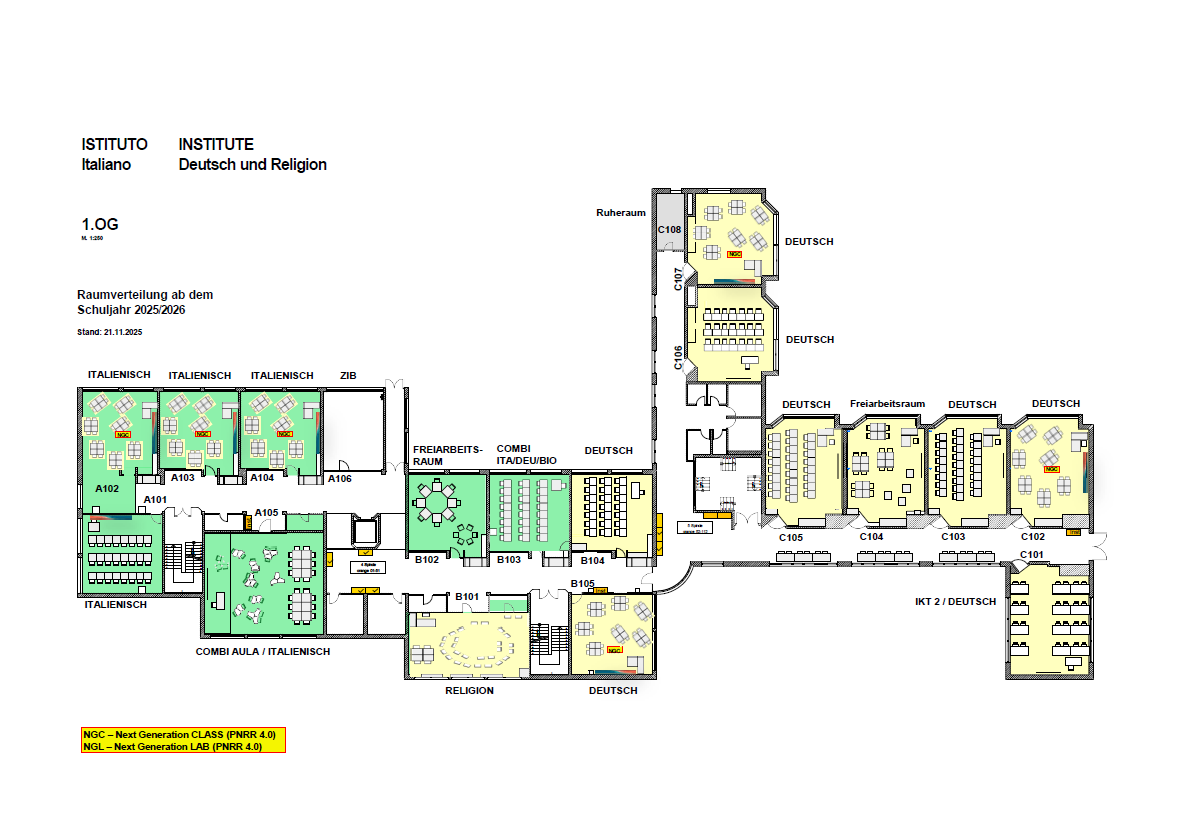
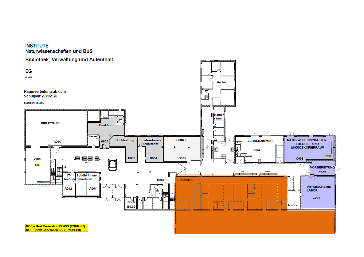
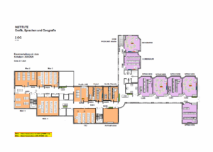
Räume im Gebäude

 

Das Schulgebäude wurde seinerzeit vom Brixner Architekten Zingerle geplant;  der sog. Altbau wurde ca. 1980 fertiggestellt, der sog. Neubau 10 Jahre später.

Wir teilen das Gebäude in 3 Trakte auf und zwar von Osten nach Westen in Trakt A, Trakt B und Trakt C. Trakt A und B befinden sich im Altbau und Trakt C im Neubau.

Die Räume sind auf insgesamt 4 Stockwerke (Parterre, 1. Stock, 2. Stock und 3. Stock) verteilt und über drei Treppenaufgänge erreichbar.

Da die Schule mit dem Fachraumprinzip arbeitet, gibt es keine Klassen mehr, sondern Fachräume, welche den sog. Instituten zugeordnet sind.